Salta al contenuto principale

Links condivisione social

Lavori Golgi-Spallanzani (27 Gen-6 Feb)

Immagine
Lavori Botta2 (Gen-Feb26)
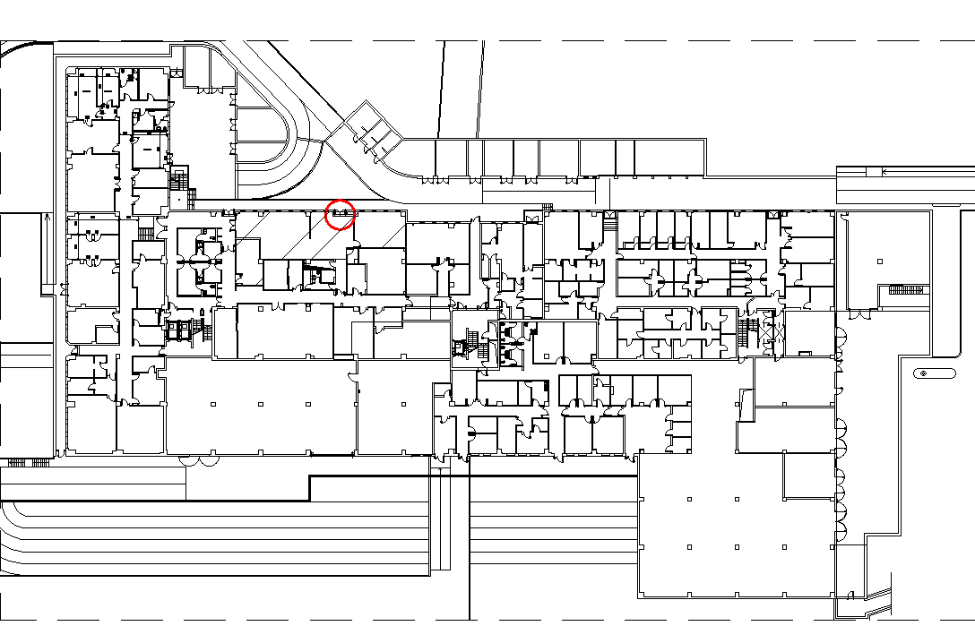
Per esigenze di cantiere, viene inibito il passaggio dalla porta indicata in planimetria (si veda disegno) presso il Golgi-Spallanzani al piano -1 di Chirurgia Sperimentale.
Si prega di prendere visione in loco dell'uscita non utilizzabile e di individuare dei percorsi di fuga temporanei, in caso si verificasse una situazione d'emergenza/ evacuazione nei giorni sotto indicati: dal 27 gennaio al 6 febbraio 2026.
Successivamente l'uscita verrà riaperta per alcuni giorni e poi richiusa per permettere l'ultimazione dei lavori interni.
Le date relative alla seconda chiusura saranno comunicate tempestivamente.
Ufficio Tecnico.